MDF 3

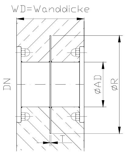
Wanddurchführung

Ausführungsform:

Bündig mit Schalung, in der Mitte mit aufgeschweißtem Mauerflansch. Beidseitig glatte Rohrenden.
Glattflansche ähnlich DIN 2576 red. Blattstärke (alternativ volle Blattstärke)
gebohrt nach PN 10/16
Vorschweißflansche DIN 2632-35
Flansche nach EN 1092-1:2001 (D) nach Typ 01, 02, 11

Schweißverbindungen:

nach DIN EN ISO 5817 C, Schweißverfahren sind qualifiziert über DIN EN 288-3 / DIN EN ISO 15614-1 Schweißer sind qualifiziert nach DIN EN 287-1

Zulassungen/Zertifikate:

Zugelassener Hersteller nach AD2000-Merkblatt HP0, Zertifizierung nach DIN EN ISO 3834-3

Werkstoff:

1.4571 oder S235JR

Oberfläche:

Edelstahl: gebeizt und passiviert
Stahl: feuerverzinkt bzw. trinkwassergeeignet verzinkt

Produktpreis anfragen